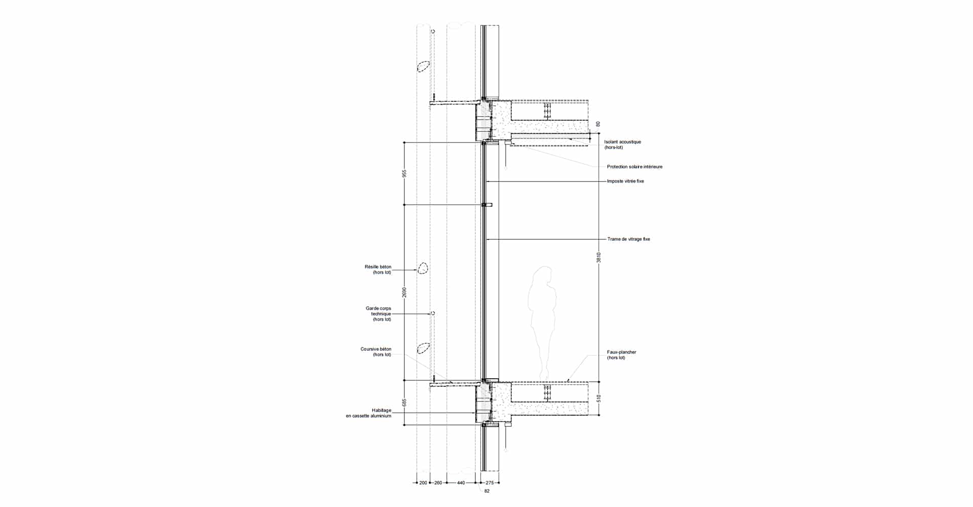
Baptisé le 19M en référence à l’arrondissement parisien où il se situe et le jour de naissance de Gabrielle Chanel (le 19 août 1883), ce centre ultramoderne va notamment accueillir onze maisons parmi lesquelles le brodeur Lesage, le bottier Massaro, l’expert de la plume et de la fleur Lemarié, le chapelier et modiste Maison Michel qui travaillent avec Chanel et autres maisons de luxe.








